The hall is a great venue for all events and can comfortably accommodate 100 people for meals. Theatre, gigs, dances, films, parties and meals can all be handled in spacious comfort.
It is the largest hall in the village and the only one with a stage.
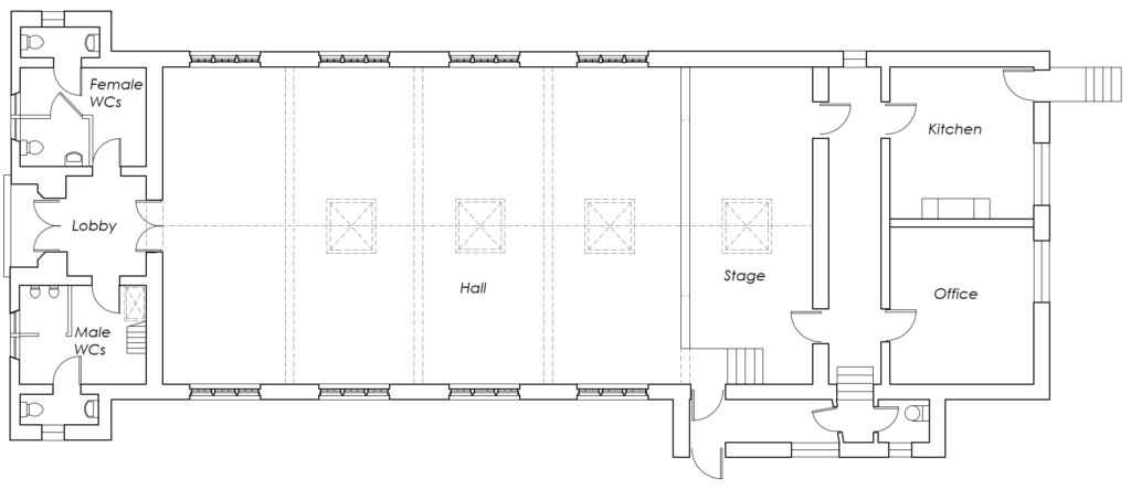
Size

The hall is approximately 15m long by 7m wide (larger than a badminton court) and has high ceilings making it a perfect indoor venue for bouncy castles. In addition there is a fully functioning proscenium arch stage. Equipment includes 100 padded chairs, 15 tables, plus basic kitchen with crockery and cutlery.










